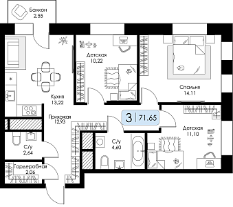
Трехкомнатная квартира №111 с чистовой отделкой, Корпус 1, Секция 1
 11 260 424 ₽
                                                        
                                                                                                        
                                                                                        Площадь
                                            
                                                65.24м2
                                            
                                        Этаж
                                            
                                                12 / 17                                            
                                        Корпус
                                                1
                                            Отделка
                                            Чистовая
                                        Дата сдачи
                                                
                                                    1 кв. 2027                                                
                                             Офис продаж:
                                            
                                                                                            
                                                    +7 (831) 238-97-67                                                
                                                                                     
                                        Менеджер на связи
                                            
                                                Заказать консультацию
                                                
                                            
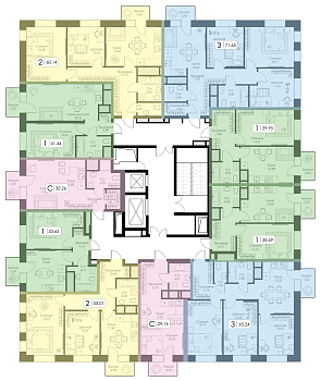
                                        Похожие планировки
        Жилые комплексы
            
        
                        7 минут до центра                    
                 
            Среда
                
                                
                                    от 4.7 млн.₽
                                
                            
                                            Смоленская область, г. Смоленск, Краснинское ш., 91
                 
            ТОР
                
                                
                                    от 3.8 млн.₽
                                
                            
                                            Тульская область, г.Тула, ул. Торховский проезд,4
                 
            О́дин
                
                                
                                    от 3.7 млн.₽
                                
                            
                                            Тульская область, г. Тула, ул.Ряжская, д. 25
                 
            Загорье
                
                                
                                    от 2.9 млн.₽
                                
                            
                                            Смоленская область, Ипподромный проезд
                
                        7 мин. до центра                    
                 
            Урбан-Парк
                
                                
                                    от 4 млн.₽
                                
                            
                                            Тверская область, г. Тверь, Коминтерна, 91
                
                        5 минут до центра                    
                 
            Шанс
                
                                
                                    от 3.5 млн.₽
                                
                            
                                            Смоленская область, Гагаринский р-он, г. Гагарин, ул.Строителей
                
                        12 минут до центра Всеволожска                    
                 
            Всевгород
                Ленинградская область, Всеволожский район, Романовское сельское поселение
                 
            Спортивный
                
                                
                                    от 4.4 млн.₽
                                
                            
                                            Смоленская область, г. Дорогобуж, улица Чистякова
                 
                                                 
							
                                         
                                     
                                     
                                         
                                         
                                         
                                         
                                         
                                         
                                        